姓名:齊傳占
設計級別:首席設計師
從業時長:5年
擅長風格:現代,輕奢,歐式,輕法式等
設計理念: 設計就是人通過對物質的創造來解釋生活和生存的意義及愿望的過程。
擅長空間:客廳 餐廳 臥室
設計案例: 錦繡花城,龍湖三千、保利198、金域藍灣、龍湖銅雀臺、南郡七英里、華潤24城、等
榮獲獎項: 北京房天下簽約設計師,曾也多次參加全國室內設計大賽,并獲得優異的成績。
作品介紹
樓盤小區:錦繡花城
戶型:套三雙衛
設計風格:現代
設計理念:
1、充足收納、敞亮空間、全房木地板都是標配。
2、一家三口常住,父母偶爾小住,即將迎接小BABY的到來,故兒童房+兩個衛生間成為剛需。
3、獨立衣帽間,無疑是給女主人“最大的體面”,讓日復一日打下的戰利品擁有容身之所。
4、因男主工作需要,為不打擾家屬,需在次臥設獨立書桌進行辦公。
5、家人和孩子興趣愛好都要各得其所,比如高爾夫球桿的存放,比如各式家用廚電的收納,比如黑板墻等等。
方案:
改造方案說明:
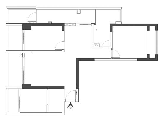
據原始戶型結構,做了兩處改動:戶型整體來說都很方正,浪費空間不多
1、次臥功能做榻榻米書桌,衣帽間三個功能區
2壓縮廚房空間,給次衛做淋浴區
3、 客廳重新規劃,布局重新考慮
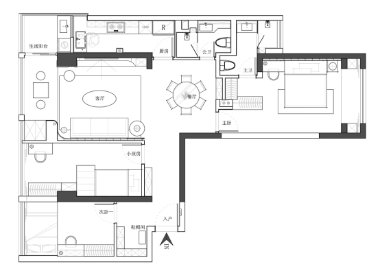
客廳:重新規劃后的客廳占領了全房采光最好的地帶!為更好地營造寬敞客廳,獲取明亮光線,果斷舍棄原大陽臺,僅留出小塊區域作為生活陽臺,其余將整個客廳向陽臺外拓,微微加高形成地臺,拉伸客餐廳空間,也給餐廳增強光源。
餐廳:位于中庭的餐廳,面積不大,又連接著主臥、客廳、廚房、公衛和過道,于是選擇放置一張精致圓桌,讓一切都順滑過渡,就好比一個環島地帶,每個出口對應著不同的方向。吊頂以圓為造型做透光膜,與圓形餐桌上下對稱。
廚房:廚房同樣是以大收納為主,所以安裝了大面積的吊柜和地柜。即使騰出了一個公衛的空間,仍然可以做到收放自如。實際上也最大程度節約了空間
臥室:有女主人在的家,自然少不了精致的梳妝臺,床頭一邊采用了當下流行的木質化妝桌替代床頭柜,略比床頭柜富裕一丁點的空間也被精準利用。把飄窗兩邊墻面拆除做儲物柜,角落里的利用價值也要被發揮到極致,一般人我才不告訴他呢!坐在飄窗軟fufu的皮質厚墊上,靠在窗邊閱讀、思考,亦或是靜靜享受二人世界。
兒童房:兒童房的落地窗區域也由原來陽臺外拓而得,高低床、衣柜、書柜一列式的排布,為兒童房創造了學習區、娛樂區和休息區,功能齊備也不局促,雖然原有天花梁位很低,但小小的半片云朵擱板遮擋,恰巧解決了中央空調的實力搶鏡,還給兒童房增添了一絲童趣。
衛生間:考慮到業主長期居住國外的生活習慣,對裝修選材的實用性和功能性都十分考量,客餐廳和臥室大面積使用木地板,而衛生間選用的是仿砂巖磚,增加防滑系數,也是相當素雅。
2022-04-30 09:22:17
2022-04-29 17:21:03
2022-04-29 16:59:53
2022-04-29 16:45:09
2022-04-29 16:40:00
2022-04-29 16:37:45
百姓品質整裝
材料人工全包&一口價零增項