- 戶型數據信息
- 小區景觀外貌
- 設計裝修要求
- 現場量房照片
- 現場問題勘測
- 量房質量報告
- 量房手稿尺寸
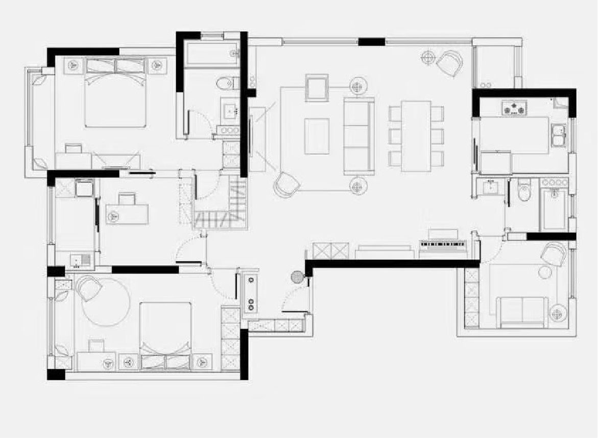
- 戶型功能分析
- 平面設計說明
- 設計效果圖紙
- 功能區設計圖
- 軟裝設計圖紙
- 燈具設計圖紙
- 家具設計圖紙
- 材料設計搭配
- 裝修投入計劃
戶型數據戶型 | 套三雙衛
面積 | 145㎡
風格 | 法式輕奢
地址 | 時代廣場
裝修造價 | 24.3萬元
裝修方式 | 全包
小區景觀外貌



設計裝修要求

現場量房照片



精度勘測-杜絕設計施工隱患
現場問題勘測

客廳水平誤差勘測

次臥東北陰角及墻面平整度勘測記錄

主臥壁柜定制歸方垂直度勘測

門口墻體厚度垂直度勘測

主臥壁柜定制歸方垂直度勘測

墻體空鼓開裂勘測
量房質量報告
墻體空鼓開裂勘測:
1、實際室內使用面積:103平米
2、客廳東西頂面水平誤差:43MM
3、客廳、臥室、5處墻面空鼓
4、主臥門口墻體厚度誤差17MM
5、走廊地面尺寸誤差22MM
6、主臥衣柜歸方誤差17MM,陽角誤差15MM,
東墻垂直度誤差21MM,下反梁水平誤差20MM
7、次臥空間較小,無法滿足正常床位需求。
8、進出超大陽臺通道需要多功能變化考慮,
進出以及隱私不方便。
9、廚房較小,無法滿足日常需求。

量房手稿尺寸


戶型功能分析

平面設計說明




以簡單而不簡單的設計,隨意而舒適的空間,清新而不單調的色彩, 深受都市人的喜愛。現代風格沒有固定的元素, 只要你喜歡它可以是時尚,個性的,民族色彩,只要你喜歡夠有創意, 那么他就是獨一無二的,只屬于你的空間……
設計效果圖紙



功能區設計圖


軟裝設計圖紙

燈具設計圖紙

家具設計圖紙

材料設計搭配


裝修投入計劃



