- 戶型數據信息
- 設計案例目錄
- 小區景觀外貌
- 設計裝修要求
- 現場量房照片
- 現場問題勘測
- 量房質量報告
- 量房手稿尺寸
- 戶型功能分析
- 原始結構問題
- 結構拆改圖紙
- 結構改造后圖
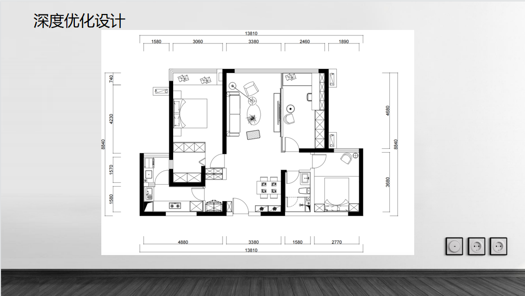
- 平面設計說明
- 設計效果圖紙
- 功能區設計圖
- 軟裝設計圖紙
- 燈具設計圖紙
- 家具設計圖紙
- 材料設計搭配
- 裝修投入計劃
- 裝修省錢方案
戶型數據戶型 | 三室兩廳
面積 | 112㎡
風格 | 現代港式
地址 | 成都·綠地gic
裝修造價 | 18萬元
裝修方式 | 全包
小區景觀外貌



設計裝修要求

現場量房照片


現場問題勘測












量房質量報告


量房手稿尺寸

戶型功能分析

原始結構問題

結構拆改圖紙

結構改造后圖

平面設計說明



設計效果圖紙

功能區設計圖

軟裝設計圖紙

燈具設計圖紙

家具設計圖紙


材料設計搭配


裝修投入計劃


裝修省錢方案



